330 000 USD 2 000 USD/m²
6 комнат , площадь 165 / 102 / 10.2 , этаж 14 из 16
Чтобы добавить VIP объявление нужно
зарегистрироваться
и перейти по
ссылке
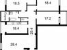
Без комісії. Печерський р-н, вул. Андрія Верхогляда ( Драгомірова),2, 14/16 цегляного будинку 1999 року побудови: - велика 6к квартира164.9 кв.м, - сучасний дизайнерський ремонт, - хол з зоною відпочинку з білим диваном, кріслами та столиком, - велика зала з овальним столом та зоною відпочинку з панорамним видом на місто, - спальна кімната з двома ліжками та виходом у кабінет зі своїм санвузлом і душовою кабіною, - окрема спальня з двоспальним ліжком та зоною відпочинку, зі своїм санвузлом і душовою кабіною, - кабінет з двома робочими столами, - кімната з розкладним диваном і зоною відпочинку , свій санвузол з душовою кабіною, - окрема кухня, - 7 кондиціонерів, 5 шаф-купе, 3 с/вузла з душовими кабінами, 1 гостьовий с/вузол, - сигналізація, - підлога з підігрівом. Чудове розташування будинку поруч з елітним ЖК Новопечерські Ліпки з його елітною інфраструктурою, де є фітнес-центри, кафе, магазини, школа, тенісні корти і інше. В пішій доступності супермаркет Novus, меблевий магазин, до станції метро Звіринецька 5 хвилин пішки. Можлива покупка як житлова нерухомість, так і під офіс. Ціна квартири ( або офісу) 330000 $. Без комісії.
220 000 USD 1 833 USD/кв.м
3 комнаты , площадь 120 / 77 / 16 , этаж 2
Продаётся просторная 3-х комнатная квартира (площадью 120 м.кв. и высокими потолками - 3м.) в кирпичном доме-спецпроекте 1997 года на Оболонской набережной недалеко от метро Оболонь и Минская. Качественный капитальный ремонт, мебель и двери из натурального дерева, дубовый паркет, оборудована необходимой техникой. Балкон застеклён. Установлен бойлер, счётчики воды и тепла зарегестрированы и поверены. Квартира расположена на втором этаже, поэтому окна оборудованы защитными решётками. Предлагается так же свой гараж в подземном паркинге (30 метров от подъезда), цену обсуждается отдельно. Расположение дома удобно для жизни и отдыха: супермаркеты и салоны, торговые центры, метро и транспорт, спортивные клубы, бакни, рынок, а так же детские и спортивные площадки, красивая набережная и парки для прогулок.
18.09.2024 в 00:00 на kvartirakiev.com.ua , kn-dom.com.ua
| Дата | Источник | Цена |
|---|---|---|
| 21.07 | kvartirakiev.com.ua | 6 216 342 ₴ |
| 18.09 | kn-dom.com.ua | 6 216 342 ₴ |
199 000 USD 1 154 USD/кв.м
6 комнат , площадь 172.5 / 115 / 9.3 , этаж 27
Продам супервидову квартиру під офіс закритого типу в ЖК ObolonSKY, просп. Оболонський, 1, корпус 3. Будинок зданий в 2019 році , 27/27-пов. монолітно-каркасний будинок на березі Кирилівського озера. Площа квартири складає :172.5/116 /9.3 Висота Н=2.8 м2 у деяких зонах H=5.5 м2 Стан – після будівельників. Панорамні вікна від підлоги, що забезпечує захоплюючі панорамні види у бік Печерська, на Кирилівське озеро, а також у бік ТЦ Дрімтаун. Усі 3 основні ліфти йдуть до 26 поверху, четвертий пожежний – до 27-го. Вхід у квартиру із загального балкону на 27 поверсі. Електрика та вода заведені. Закрита територія, розвинена інфраструктура, поряд метро Оболонь, торгові центри: Метрополіс, Велика кишеня, Дрім Таун , Lake Plaza. Є діючі підземний паркінг, гостьова парковка, зона відпочинку на березі озера та дитячий майданчик. Документам більше 3-х років ,житловий фонд.
21.10.2025 в 12:00 на Level Group
75 000 USD 1 172 USD/кв.м
3 комнаты , площадь 64 / 8 , этаж 1
Продам 3-х комнатную квартиру по ул.Зои Гайдай (Оболонь), ст. метро Минская - 2мин. пешком. Быстрая продажа и освобождение. 2 сторонняя,2 балкона(выходит на остановку Зои Гайдай)удобно под бизнес,2 подвала. Рядом экомаркет,рынк,поликлиника ,школы и дет.сад. Реальному покупателю хороший торг
30.10.2023 в 10:00 на kvartirakiev.com.ua
250 000 USD 2 137 USD/кв.м
3 комнаты , площадь 117 / 75 / 21 , этаж 3
Авторская работа дизайнера Виолетты Свиридовой. Индивидуальный проект квартиры реализованный на этапе строительства. В отделке использованы дорогостоящие импортные натуральные материалы. Авторский надзор. Свежий ремонт. Немецкие зеркальные стекло-пакеты, теплый пол, бойлер, раздельные сплит системы кондиционирования, установлена немецкая сантехника. Элементы системы умный дом с датчиками движения и Led элементами освещения, система из трех встроенных гардеробов. Круглосуточная охрана и сигнализация. Окна выходят на парк и на Днепр.
21.07.2023 в 10:00 на kvartirakiev.com.ua
150 000 USD 1 250 USD/кв.м
4 комнаты , площадь 120 , этаж 1
ЖК Оболонь. Прям на оболонской набережной. Героев Сталинграда 14В. Идеально подойдет для коммерции: салона красоты, барбершопа, полиграфии. Возможность сделать отдельных вход. Окна на набережную и во двор. Индивидуальный проект. Кирпичный дом. 1й этаж, 120м. кв. 4 комнаты, одна из них кухня-гостинная. Двухсторонняя смежно-проходная планировка. 2 санузла, один из них совместный.
21.06.2023 в 20:00 на kvartirakiev.com.ua
790 000 USD 2 324 USD/кв.м
6 комнат , площадь 340 / 134 / 22 , этаж 9
Квартира с качественным ремонтом с использованием лучших материалов, мебелью итальянских производителей и бытовой техникой. Оболонские Липки с собственной инфраструктурой. Квартира светлая и просторная, отличное зонирование благодаря трехуровневому планированию. Прекрасные виды, панорама Днепра. Большой двор с цветниками. Хорошее состояние, консьерж, кодовый замок, парковка/бесплатно охраняемая + есть гараж к подземном паркинге. +105 кв.м. терраса. Площадь по техпаспорту 260. (+60=340 кв.м. + 105 кв.м. терраса над квартирой (возможно сделать).+ гараж 24м2. 1 уровень: 3 спальни, 2 с/у, гостиная + камин (дровяной), кухня-21 кв.м. 2 уровень: 1 комната-кабинет, библиотека, пост
21.06.2023 в 20:00 на kvartirakiev.com.ua
330 000 USD 2 063 USD/кв.м
4 комнаты , площадь 160 / 82 / 15 , этаж 15
Видовая 4-х комнатная квартира 160 м2, Оболонские Липки ЖК “Оазис” просп. Героев Сталинграда 10А. Видовая, двухсторонняя квартира, 15 этаж 15 этажного дома. Функциональная планировка, гостиная, кухня, 3 спальни, 2 санузла, кладовая, гардеробная, лоджия. Квартира укомплектована мебелью и бытовой техникой. Окна выходят на две стороны, окна спальни выходят на р.Днепр и набережную. Все продумано и удобно. Консьерж. Парковка. Во дворе - детская площадка. Развитая инфраструктура. Ближайшая ст. метро Оболонь. В двух шагах Оболонская набережная, р. Днепр, обновленный парк Наталка, гольф-клуб. Есть подземный паркинг (бомбоубежище)
21.06.2023 в 20:00 на kvartirakiev.com.ua
900 000 USD 2 727 USD/кв.м
5 комнат , площадь 330 , этаж 9
Продажа роскошных 5-ти комнатных апартаментов общей площадью 330 кв.м. по адресу проспект Героев Сталинграда 24а. Двухуровневая квартира с террасой и зоной Барбекю,все помещения кондиционированы, установлены видеонаблюдение, датчики на движение. Полы с подогревом,художественный паркет и стеновые панели из ценного дерева палисандр.Текстиль и мебель выполнены под индивидуальный заказ во Франции, Англии, Италии.В техническом помещении ВНЕ квартиры установлены система очистки и фильтры на воду, бойлер, счетчики. Круглосуточный консьерж, паркинг,2 гаражных бокса. Цена 900 000$ Код объекта № 21117649
07.02.2020 в 00:00 на kn-dom.com.ua
360 000 USD 2 182 USD/кв.м
4 комнаты , площадь 165 / 90 / 20 , этаж 3
Продам 4-х кімнатну квартиру по пр. Володимира Івасюка (Героев Сталинграда) 24а. Двір виходить на Оболонську набережну, р.Дніпро, Парк Наталка Площа 165 м2 на 3/10 поверх. Ремонт метро Мінська 5 хв. пішки. Киев, Киевская область, Оболонский район
20.06.2023 в 18:00 на kvartirakiev.com.ua
450 000 USD 1 607 USD/кв.м
5 комнат , площадь 280 / 150 / 25 , этаж 3
ул.Тимошенка 29, 3-й этаж 16-ти эт.дома. Лучшая квартира на Оболонских Липках - идеальное предложение для тех, кто ценит настоящую роскошь. Депутатский дом класса Элит - обжитый новый дом, кирпич, спецпроект, построен по лучшим технологиям в Киеве. 5 комнат, 3 с/у, прачечная, гардеробные, два балкона. Дорогой дизайнерский ремонт, итальянская мебель, вся техника. Художественный паркет, подогрев полов, кондиционирование. Одноуровневая. Цена: 650 000 у.е. Комнат: многокомнатная Общая площадь: 280 кв.м. Жилая площадь: 150 кв.м. Площадь кухни: 25 кв.м. Этаж / Этажность: 3 / 16 Тип дома: Кирпичный | Новострой Санузел: 2 и более Балкон: 14.00 кв.м. | Застеклен
20.06.2023 в 16:00 на kvartirakiev.com.ua
300 000 USD 1 875 USD/кв.м
4 комнаты , площадь 160 / 78 / 26 , этаж 7
4-х комнатная квартира оболонь оазис Героев Сталинграда 6, 160 м2. Три спальные, есть парко-место, техника, кондиционеры, тёплые полы, паровой бокс, джакузи, два санузла, постирочная, два гардероба.
06.06.2023 в 10:00 на kvartirakiev.com.ua
550 000 USD 2 750 USD/кв.м
4 комнаты , площадь 200 / 100 / 24 , этаж 12
Квартира расположена на 12 и 13 этажах. 200 кв.м. Просторная и светлая. Ремонт выполнен из дорогих, современных, качественных материалов. На 1 уровне располагаются: гостиная с камином и двумя эркерами, кухня с лоджией, просторный холл, гардеробная и сан/узел. На втором уровне: спальная зона из 3-х спален, 2 сан/узла, сауна, лоджия и балкон. Вся мебель из Италии, удобная встроенная кухня и необходимая бытовая техника. В доме консьерж, 2 лифта, чистый подъезд. Хорошие соседи. Прекрасное место для полноценной жизни, и отдыха. Удобное расположение и хорошая транспортная развязка. Две станции метро Минская, Оболонь – 7 минут пешком. До Оболонской набережной – 50 м. Двор тихий, с хорошим детским садом. Все для комфортного проживания: до супермаркета Le Silpo - 20 м, школы и детские сады (государственные и частные), аптеки, отделения банков, и др. В пешей доступности торговые центры, парк Наталка, гольф клуб, набережная для прогулок и детские площадки. Звоните
13.07.2022 в 12:00 на kvartirakiev.com.ua
125 000 USD 2 404 USD/кв.м
1 комната , площадь 52 / 23 / 16 , этаж 19
Продам квартиру-студию по ул. Йорданская (Лайоша Гавро), 1 (м. Оболонь, м. Почайна). Дизайнерский ремонт, со встроенной мебелью, бытовой техникой. Большая гардеробная, лоджия из кухни, подогрев полов. Большой совмещенный санузел с ванной и душевой кабиной. Также есть большая кладовая на этаже. Вид на Киев.
11.07.2022 в 14:00 на kvartirakiev.com.ua
90 000 USD 2 432 USD/кв.м
1 комната , площадь 37 , этаж 5
Продам однокомнатную квартиру-студию с ремонтом в новостройке ПАРУС. Отопление по счетчику. Престижное парадное, подземный паркинг, закрытая территория. Рядом парк Наталка и всё необходимое для комфортной жизни.
11.07.2022 в 12:00 на kvartirakiev.com.ua
146 000 USD 2 000 USD/кв.м
2 комнаты , площадь 73 / 37 / 15 , этаж 21
Продам 2-х комнатную квартиру на Оболоне по ул. Маршала Малиновского, 4-В (ЖК Гранд). Объект сдан в эксплуатацию. Новострой. Большая лоджия на кухню и комнату Состояние после строителей. Хороший вид из окна.
11.07.2022 в 12:00 на kvartirakiev.com.ua
200 000 USD 2 632 USD/кв.м
2 комнаты , площадь 76 / 42 / 14 , этаж 4
2-х комнатная Оболонский пр.54, после ремонта. От метро Героев Днепра 2 минуты ходьбы. Только после ремонта. Во всей квартире инновационная супер экономичная система водяных теплых полов. Позволяет полностью отказаться от центрального отопления(есть счетчики тепла)
11.07.2022 в 12:00 на kvartirakiev.com.ua
110 000 USD 1 528 USD/кв.м
3 комнаты , площадь 72 / 42 / 12 , этаж 8
Продается 3 ком. квартира по адресу Героев Днепра 49. В отличном состоянии, Евроремонт, Итальянская кухня, мебель. Импортная сантехника, итальянская плитка. Художественный паркет. Холл 9,5 кв.м. На балконе бронестекло, вагонка. Теплый дом, есть счетчики. Метро 3 мин. Продаем с мебелью. Под домом Сильно, возле дома АТБ, спортзал, банк, гараж, стоянка, 2 садика, школа. Документы в порядке, один собственник. Показ в светлое время суток. Торг.
11.07.2022 в 12:00 на kvartirakiev.com.ua
119 000 USD 2 125 USD/кв.м
1 комната , площадь 56 , этаж 7
Продам 1-комн. квартиру на Оболонских Липках (м.Минская, м. Оболонь, Оболонская набережная). В квартире: встроенная кухня, бытовая техника, мебель, кондиционер. Рядом набережная, парк НАТАЛКА, идельное место для жизни и отдыха, развитая инфраструктура.
08.07.2022 в 18:00 на kvartirakiev.com.ua
167 000 USD 1 981 USD/кв.м
4 комнаты , площадь 84.3 / 54.5 / 7.6 , этаж 1
4-х комнатная квартира,улица Героев Сталинграда, Оболонский район, метро Минская. 1 этаж, с возможностью оборудования отдельного входа с фасада дома. Идеальна под офис. Квартира после косметического ремонта. Полностью оборудована кухня, два санузла, два балкона, на полу деревянный паркет. Частично обставлена офисной мебелью, готова к эксплуатации.
08.07.2022 в 18:00 на kvartirakiev.com.ua
254 000 USD 2 000 USD/кв.м
4 комнаты , площадь 127 , этаж 3
Продается 4-х комнатная квартира в самом центре Оболони возле метро Минская. Дом 2001 года постройки. Рядом с домом охраняемая парковка, метро , Дрим Таун, магазины, рестораны. До Оболонской набережной 10 мин пешком. Недалеко от дома отличные детские сады и школы. Развитая инфраструктура, консьерж, респектабельные соседи; квартира полностью оборудована мебелью и бытовой техникой, 2 санузла, 2 застекленных балкона, окна во двор и парк. Звоните или пишите на Viber или WhatsApp. Район: Оболонский р-н Комнат: 4 Этаж: 3 из 16 Площадь: 127 м2 Цена: 230 000 у.е.
08.07.2022 в 18:00 на kvartirakiev.com.ua
показано 20 объявлений из 302 на 9 странице